grow - Raum für Ideen

Auftraggeber|in Robert Bosch Start-Up GmbH
Innenraumgestaltung, Moderation SFP Architekten GmbH
Hochbau Geiger Architekten & Ingenieure
Kunstwerke orange council GmbH
NF ca. 5.400m²
Zeitraum 2017

Ziel ist die Umnutzung einer mitten in Ludwigsburg gelegenen ehemaligen Produktionshalle eines Maschinenbauers in einen Kreativcampus. Unter deren Dach bietet die Robert Bosch Start-Up GmbH in Zukunft Unternehmensinternen und externen Gründerteams die Plattform Ihre Ideen zu verwirklichen.

SFP wurde zunächst mit einer Moderation der Nutzer und Projektverantwortlichen betreut. Mit deren Hilfe wurden im Vorfeld des Planungsprozesses durch gezielte Bedarfsanalysen die verschiedenen Anliegen der Projektbeteiligten klar definiert um diese rechtzeitig in der Projektplanung berücksichtigen zu können. Somit sollen Projektverzögerungen vermieden und Zielstellungen des Projektes klarer herausgearbeitet werden können.

Im zweiten Schritt wurde SFP mit der Architektonischen Konzeption des Entwurfs, basierend auf den Ergebnissen der Analysen beauftragt.

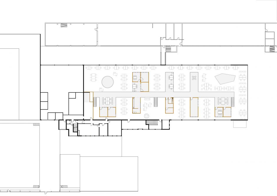
Um der Differenziertheit der Anforderungen der einzelnen Start-Up Teams Rechnung zu tragen, wird eine Architektursprache generiert, die sich nicht auf ein starres Abbilden der räumlichen Bedürfnisse beschränkt, sondern der Flexibilität der Anforderungen höchste Priorität beimisst.

Das Räumliche Gehirn eines jeden Teams bietet die Keimzelle. Eine in Ihrer Dimension auf geltende Richtlinien und die vorab abgefragten Anforderungen zugeschnittene Raumeinheit. Diese kann über ein in das Gebäude gestellte Stahlskelett individuell erweitert, geteilt, vergrößert und verändert werden.

Neben der Flexibilität der Nutzung der Flächen spielt die Kommunikation und die wechselseitige Inspiration zwischen den Teams in guter Arbeitsatmosphäre eine große Rolle. Präsentationen und Events sollen auch in größerem Rahmen zukünftig im eigenen Haus durchgeführt werden können. In den Räumlichkeiten sollen Möglichkeiten geschaffen werden, den zukünftigen Geschäftsbereich Bildung und Weitergabe von Wissen auszubauen.

Die Teams vermengen sich mit dieser Vielzahl von Kommunikations-, Team- und Eventflächen und Räumen zu einem heterogenen Nährboden für neue Ideen.

Fotos: Sarah Weiselowski und SFP

Artikel auf db-bauzeitung.de - Gründerzentrum »Grow« in Ludwigsburg - Alte Halle für neue Ideen

Artikel in der Stuttgarter Zeitung - Eröffnung Bosch Start-up GmbH in Ludwigsburg

Was wächst, braucht Platz. Bosch Start-ups bekommen eine neue Heimat

Mehr Platz, mehr Freiraum, mehr Kreativität